80 قاب Si/Gi نوار نقاله کوچک
Cat:نقاله کمربند نوع استاندارد
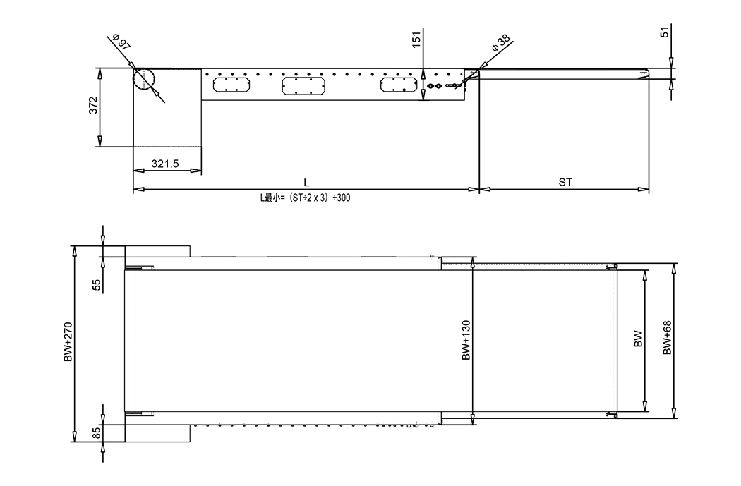
مشخصات مختلف ، وزن محصول با استفاده از کمربند انتقال ، حمل و نقل نیز بسیار پایدار است. بعد استاندا...
نوار نقاله کمربند یک ماشین آلات انتقال مداوم است که مواد را از طریق درایو اصطکاک حمل می کند. اجزای اصلی آن شامل قاب ، کمربند ، غلطک های حامل ، غلطک های محور ، دستگاه تنش و سیستم درایو است. نقاله کمربند یک فرآیند انتقال مواد بدون درز را در امتداد یک خط نقاله تعریف شده از نقطه بارگذاری اولیه به نقطه تخلیه نهایی امکان پذیر می کند. این امر به ویژه برای انتقال مواد سست مناسب است و در چنین برنامه هایی به طور مؤثر عمل می کند. نوار نقاله های کمربند معمولاً در تنظیمات صنعتی به عنوان خطوط مونتاژ ، خطوط بسته بندی و موارد دیگر استفاده می شوند .

مشخصات مختلف ، وزن محصول با استفاده از کمربند انتقال ، حمل و نقل نیز بسیار پایدار است. بعد استاندا...
مشخصات مختلف ، وزن محصول با استفاده از کمربند انتقال ، حمل و نقل نیز بسیار پایدار است.
بعد استاندارد
| عرض کمربند | 200 | 300 | 400 | 500 | 600 | 700 | 800 | 900 | 1000 | ||||
| عرض نوار نقاله | 300 | 400 | 500 | 600 | 700 | 800 | 900 | 1000 | 1100 | ||||
| طول نوار نقاله | 1000 | 2000 | 3000 | 4000 | 5000 | 6000 | 7000 | 8000 | |||||
| قد | 380 | قدرت | AC100V (تک فاز) · AC200V (تک فاز) · AC200V (سه فاز) · AC380V (سه فاز) |
| سرعت | سرعت ثابت/متغیر | تسمه | کمربند پلی اورتان |
| توانایی | جدول توانایی مرجع | گزینه | پشتیبانی ، دیگران |
| نیروی حرکتی | 100W 、 200W 、 400W |
ابعاد واقعی کمربند 5 میلی متر باریک تر از کمربند استاندارد است. طول دستگاه بیش از 4M باریک 10 میلی متر است.
سرعت کمربند
| نسبت | سرعت شماره | سرعت ثابت 50/60 (هرتز) (متر در دقیقه) | سرعت شماره | سرعت متغیر 50/60 (هرتز) (متر در دقیقه) |
| 1/450 | T1 | 1.1/1.3 | H1 | 1.1 ~ 1.1/0.45-1.3 |
| 1/375 | t2 | 1.4/1.6 | H2 | 0.45 ~ 1.4/0.51 ~ 1.6 |
| 1/300 | T3 | 1.7/2.0 | H3 | 0.56 ~ 1.7/0.68 ~ 2.0 |
| 1/200 | T4 | 2.6/3.1 | H4 | 0.85 ~ 2.6/1.0 ~ 3.1 |
| 1/160 | t5 | 3.2/3.8 | H5 | 3.2 ~ 3.2/1.3 ~ 3.5 |
| 1/2020 | t6 | 4.3/5.1 | H6 | 1.4 ~ 4.3/1.7 ~ 5.1 |
| 1/2000 | t7 | 5.1/6.1 | H7 | 1.7 ~ 5.1/2.0 ~ 6.1 |
| 1/80 | t8 | 6.4/7.7 | H8 | 2.1 ~ 6.4/2.6 ~ 7.7 |
| 1/60 | T9 | 8.5/10.2 | H9 | 2.8 ~ 8.5/3.4 ~ 10.2 |
| 1/50 | T10 | 10.2/12.2 | H10 | 3.4 ~ 10.2/4.1 ~ 12.2 |
| 1/40 | t11 | 12.8/15.3 | H11 | 4.3 ~ 12.8/5.1 ~ 15.3 |
| 1/30 | T12 | 17.0/20.4 | H12 | 5.7 ~ 17.0/6.8 ~ 20.4 |
| 1/25 | T13 | 20.4/24.5 | H13 | 6.8 ~ 20.4/8.2 ~ 24.5 |
| 1/20 | T14 | 20.5/30.6 | H14 | 8.5 ~ 25.5/10.2 ~ 30.6 |
| 1/15 | T15 | 34.0/40.8 | H15 | 11.3 ~ 34.0/13.6 ~ 40.8 |
محاسبه سرعت سرعت ثابت چرخش سرعت 1500/1800rpm (50/60 هرتز) غلتک رانندگی ∅124 ، راندمان رانندگی: 95 ٪
در صورت نیاز به سرعت دقیق ، فرم های متغیر را انتخاب کنید.
اینورتر نوع انتقال استاندارد.
جدول توانایی
این داده های قابلیت بارگذاری پراکندگی برابر است. به عنوان در حال حرکت کیسه های در حال حرکت ، لطفاً به 40 ٪ از داده های توانایی قابل استفاده مراجعه کنید.
قابلیت با شرایط مختلف تغییر خواهد کرد.
نقاشی

منبع محور انتخاب غلتک موتوری نوع تقویت شده ، ارتفاع قسمت محور 120 میلی متر ممکن است ما بتوانیم غلتک موتوری ضد ...
منبع محور انتخاب غلتک موتوری نوع تقویت شده ، ارتفاع قسمت محور 120 میلی متر ممکن است ما بتوانیم غلتک موتوری ضد آب (قابل انتخاب) تولید کنیم.
بعد استاندارد
| عرض کمربند | 300 | 400 | 500 | 600 | ||||
| عرض نوار نقاله | 390 | 490 | 590 | 690 | ||||
| طول نوار نقاله | 500 | 1000 | 1500 | 2000 | 2500 | 3000 | 3500 | 4000 |
| قد | 120 | قدرت | AC100V (تک فاز) · AC200V (تک فاز) · AC200V (سه فاز) · AC380V (سه فاز) |
| سرعت | سرعت ثابت/متغیر | تسمه | کمربند پلی اورتان |
| توانایی | جدول توانایی مرجع | گزینه | پشتیبانی ، دیگران |
| نیروی حرکتی | 100 وات |
ابعاد واقعی کمربند 10 میلی متر از بین بردن کمربند استاندارد است.
سرعت کمربند
| سرعت شماره | سرعت ثابت 50/60 (هرتز) (متر در دقیقه) | سرعت شماره | سرعت متغیر 50/60 (هرتز) (متر در دقیقه) | نیروی حرکتی |
| T1 | 5.4/5.6 | H1 | 2.1 ~ 6.4 | 100 وات |
| t2 | 7.7/9.2 | H2 | 3.1 ~ 9.2 | |
| T3 | 106./12.7 | H3 | 4.2 ~ 12.7 | |
| T4 | 15.8/18.8 | H4 | 6.3 ~ 18.8 | |
| t5 | 18.4/22.0 | H5 | 7.3 ~ 22.0 | |
| t6 | 20.3/24.2 | H6 | 8.0 ~ 24.2 | |
| t7 | 24.3/28.9 | H7 | 9.6 ~ 28.9 |
اینورتر نوع انتقال استاندارد.
نقاشی

نوع نوع مقیاس پذیر GSBC تسمه PVC PU عر...
| نوع | نوع مقیاس پذیر GSBC |
| تسمه | PVC PU |
| عرض کمربند میلی متر | 1200 ~ 300 |
| سکته مغزی تلسکوپی MM | 1200 ~ 300 |
| روش محرک | تلسکوپ زنجیره ای در حال اجرا: کمربند زمان بندی |
| موتور در حال اجرا | موتور ناهمزمان (سروو اختیاری) |
| موتوری | خدمتکار |
| ارتفاع نوار نقاله mm | حداقل 375 میلی متر |
| عرض مگنی | BW 130 |
| ظرفیت بار (کیلوگرم در متر) | ظرفیت بار کامل دستگاه 20 کیلوگرم |
| سرعت V1 (m/min) | حداکثر 90 |
| Speed V2 (m/min) | حداکثر 60 |
| حالت کنترل تلسکوپی | هر موقعیت توقف تلسکوپی را در محدوده مرحله ، مداوم و مسافرت قرار دهید |
| قدرت موتور (KW) | 0.4、0.75、1.5 |
| ولتاژ برق (V) | 3ph380v |
نقاشی

از طریق همکاری بین چرخ راهنما و راه آهن راهنما ، می توان کمربند را کشید و هدایت کرد تا اجرا شود. ویژگی ها: ...
از طریق همکاری بین چرخ راهنما و راه آهن راهنما ، می توان کمربند را کشید و هدایت کرد تا اجرا شود.
ویژگی ها: کم هزینه ، بار سبک و سرعت کم.
بعد استاندارد
HCII-s
| عرض کمربند | 200 | 300 | 400 | 500 |
| عرض نوار نقاله | 520 | 620 | 720 | 820 |
| زاویه | 90 | نیروی حرکتی | 90W 、 120W 、 200W |
| قد | 270 تا 1100 فوت ارتفاع با | قدرت | AC100V (تک فاز) · AC200V (تک فاز) · AC200V (سه فاز) |
| سرعت | سرعت ثابت/متغیر | تسمه | کمربند پلی اورتان |
| توانایی | 10 کیلوگرم/مجموعه (هنگامی که بار افقی پراکنده شده است) |
به عنوان کالاهای در حال حرکت کیسه ، لطفاً به 40 ٪ از داده های توانایی از بین برود.
HCII-M
| عرض کمربند | 300 | 400 | 500 | 600 |
| عرض نوار نقاله | 680 | 780 | 880 | 980 |
| زاویه | 90 | نیروی حرکتی | 200W 、 400W |
| قد | لطفاً مشخص کنید ، پاها اختیاری هستند | قدرت | AC200V (سه فاز) |
| سرعت | سرعت ثابت | تسمه | کمربند پلی اورتان |
| توانایی | 40 کیلوگرم/مجموعه (هنگامی که بار افقی پراکنده شده است) |
به عنوان کالاهای در حال حرکت کیسه ، لطفاً به 40 ٪ از داده های توانایی از بین برود.
سرعت کمربند HCII-S
| نسبت | سرعت شماره | سرعت ثابت 50/60 (هرتز) (متر در دقیقه) | سرعت نه | سرعت متغیر 50/60 (HZX (M/min) |
| 1/180 | T1 | 16./1.9 | H1 | 2.1 0.11 ~ |
| 1/2050 | t2 | 1.8/2.2 | H2 | 2.5 ~ 0.13 |
| 1/2020 | T3 | 2.3/2.8 | H3 | 3.1 ~ 0.16 |
| 1/90 | T4 | 3.1/3.7 | H4 | 0.21-4.2 |
| 1/75 | t5 | 3.8/4.5 | H5 | 0.25 ~ 5.0 |
| 1/60 | t6 | 4.7/5.6 | H6 | 0.31 ~ 6.2 |
| 1/50 | t7 | 5.6/6.7 | H7 | 0.38 ~ 7.5 |
| 1/36 | t8 | 7.8/9.4 | H8 | 0.52-10.4 |
| 1/30 | T9 | 9.3/11.2 | H9 | 0.63 ~ 12.5 |
| 1/25 | T10 | 11.3/13.5 | H10 | 0.75 ~ 15.0 |
| 1/18 | t11 | 15.6/18.7 | H11 | 1.04 ~ 20.8 |
| 1/15 | T12 | 18.8/22.5 | H12 | 1.25 ~ 25.0 |
| 1/12.5 | T13 | 22.5/27.0 | H13 | 1.50 ~ 30.0 |
سرعت کمربند HCII-M
| نسبت | سرعت شماره | سرعت ثابت 50/60 (هرتز) (متر در دقیقه) |
| 1/2020 | T1 | 15/18 |
| 1/90 | t2 | 20/24 |
محاسبه سرعت سرعت ثابت: سرعت چرخش 1500/1800rpm (50/60Hz) ، غلتک رانندگی ф82.3 ، راندمان رانندگی: 95 ٪
محاسبه سرعت سرعت متغیر: سرعت چرخش 2000rpm (50 ؛ 60Hz) ، غلتک رانندگی ф82.3 ، راندمان رانندگی: 95 ٪
نقاشی

از طریق همکاری بین چرخ راهنما و نوار راهنما ، کمربند کشیده و هدایت می شود. ویژگی ها: سر و صدای کم ، سرعت با...
از طریق همکاری بین چرخ راهنما و نوار راهنما ، کمربند کشیده و هدایت می شود.
ویژگی ها: سر و صدای کم ، سرعت بالا و حتی نیروی کمربند.
بعد استاندارد
| عرض کمربند | 200 | 300 | 400 | 500 | 600 | 700 | 800 |
| عرض نوار نقاله | 520 | 620 | 720 | 820 | 920 | 1020 | 1120 |
| زاویه | 90 | نیروی حرکتی | 200W 、 370W 、 750W |
| قد | 380 تا 1100 فوت ارتفاع با | قدرت | A (تک فاز AC110V) B (تک فاز AC200V) C (AC200V/380V سه فاز) |
| سرعت | سرعت ثابت | تسمه | کمربند پلی اورتان |
| توانایی | 100 کیلوگرم/مجموعه (هنگامی که بار افقی پراکنده شده است) |
به عنوان کالاهای در حال حرکت کیسه ، لطفاً به 40 ٪ از داده های توانایی از بین برود.
سرعت کمربند
| نسبت | سرعت شماره | سرعت ثابت 50/60 (هرتز) (متر در دقیقه) | سرعت شماره | سرعت متغیر 50Hz (M/min) |
| 1/180 | T1 | 1.6/1.9 | H1 | 0.09-1.7 |
| 1/2050 | t2 | 1.9/2.3 | H2 | 0.1-2.1 |
| 1/2020 | T3 | 2.4/2.9 | H3 | 0.13-2.6 |
| 1/90 | T4 | 3.2/3.8 | H4 | 0.17-3.5 |
| 1/75 | t5 | 3.8/4.6 | H5 | 0.2-4.2 |
| 1/60 | t6 | 4.9/5.8 | H6 | 0.25-5.1 |
| 1/50 | t7 | 5.8/6.9 | H7 | 0.3-6.2 |
| 1/36 | t8 | 8/9.5 | H8 | 0.4 ~ 8.6 |
| 1/30 | T9 | 9.5/11.5 | H9 | 0.5-10.4 |
| 1/25 | T10 | 11.5/13.7 | H10 | 0.6-12.4 |
| 1/18 | t11 | 15.9/19 | H11 | 0.9-17.3 |
| 1/15 | T12 | 19.3/22.3 | H12 | 1 ~ 20.6 |
| 1/12.5 | T13 | 23/27.4 | H13 | 1.2-24.8 |
| 1/7.5 | T14 | 38.3/45.8 | H14 | 2.1-41.4 |
| 1/5 | T15 | 57.5/68.6 | H15 | 3.1-62 |
| 1/3.6 | T16 | 79.9/95.4 | H16 | 4.3-86.1 |
| 1/3 | T17 | 95.8/114.4 | H17 | 5.2-103.4 |
محاسبه سرعت سرعت ثابت: سرعت چرخش 1500/1800rpm (50/60Hz) ، غلتک رانندگی ф82.3 ، راندمان رانندگی: 95 ٪
محاسبه سرعت سرعت متغیر: سرعت چرخش 2000rpm (50 ؛ 60Hz) ، غلتک رانندگی ф82.3 ، راندمان رانندگی: 95 ٪
نقاشی

از طریق همکاری بین زنجیره و چرخ راهنما ، کمربند را می توان کشید و هدایت کرد. ویژگی ها: بار سنگین و سرعت سری...
از طریق همکاری بین زنجیره و چرخ راهنما ، کمربند را می توان کشید و هدایت کرد.
ویژگی ها: بار سنگین و سرعت سریع.
بعد استاندارد
| عرض کمربند | 400 | 600 | 800 | 1000 | 1200 | 1400 | 1600 | 1800 |
| عرض نوار نقاله | 525 | 725 | 925 | 1125 | 1325 | 1525 | 1725 | 1925 |
| زاویه | 90 | نیروی حرکتی | 370W 、 750W 、 1.1kW 、 1.5kW 、 2.2kW |
| قد | 550 تا 2000 فوت ارتفاع با | قدرت | A (تک فاز AC110V) B (تک فاز AC200V) C (AC200V/380V سه فاز) |
| سرعت | سرعت ثابت | تسمه | پلی (N-Vinyl Carbazole) |
| توانایی | 200 کیلوگرم/مجموعه (هنگامی که بار افقی پراکنده شده است) |
به عنوان کالاهای در حال حرکت کیسه ، لطفاً به 40 ٪ از داده های توانایی از بین برود.
سرعت کمربند
| نسبت | سرعت شماره | سرعت ثابت 50/60 (هرتز) (m/min | سرعت شماره | سرعت متغیر 50Hz (M/min) |
| 1/2040 | T1 | 2.6/3.0 | H1 | 1.0-2.6 |
| 1/2020 | t2 | 2.8/3.5 | H2 | 1.1-2.8 |
| 1/2000 | T3 | 3.5/4.2 | H3 | 1.4 ~ 3.5 |
| 1/90 | T4 | 4.0/6.7 | H4 | 1.6 ~ 4.0 |
| 1/80 | t5 | 4.4/5.4 | H5 | 1.8-4.4 |
| 1/70 | t6 | 4.9/5.8 | H6 | 2.0-4.9 |
| 1/60 | t7 | 5.8/7.0 | H7 | 2.3-5.8 |
| 1/50 | t8 | 7.0/8.4 | H8 | 2.8 ~ 7.0 |
| 1/45 | T9 | 7.7/9.3 | H9 | 3.1 ~ 7.7 |
| 1/40 | T10 | 8.6/10.5 | H10 | 3.4 ~ 8.6 |
| 1/30 | t11 | 11.6/14.0 | H11 | 4.7 ~ 11.6 |
| 1/25 | T12 | 14.0/16.8 | H12 | 5.6 ~ 14.0 |
| 1/20 | T13 | 17.5/21.0 | H13 | 7.0-17.5 |
| 1/15 | T14 | 23.3/28.0 | H14 | 9.3 ~ 23.3 |
| 1/10 | T15 | 35.0/41.9 | H15 | 14.0-35.0 |
| 1/5 | T16 | 70.0/83.8 | H16 | 28.0-70.1 |
محاسبه سرعت سرعت ثابت: سرعت چرخش 1500/1800rpm (50/60Hz) ، غلتک رانندگی ф82.3 ، راندمان رانندگی: 95 ٪
محاسبه سرعت سرعت متغیر: سرعت چرخش 2000rpm (50 ؛ 60Hz) ، غلتک رانندگی ф82.3 ، راندمان رانندگی: 95 ٪
نقاشی
چرا تعمیر و نگهداری نوار نقاله غلتکی به طور مستقیم بر طول عمر سیستم تأثیر می گذارد؟ نوار نقاله غلتکی ...
بیشتر بخوانیدچه چیزی یک نوار نقاله غلتکی را واقعاً سنگین می کند؟ نوار نقاله غلتکی سنگین نه با ادعاهای بازاریابی، بلکه با ا...
بیشتر بخوانیدنوار نقاله غلتکی چیست و چرا نوع آن اهمیت دارد؟ نوار نقاله های غلتکی سیستمهای جابهجایی مواد هستند ک...
بیشتر بخوانیدچرا نوار نقاله های غلتکی ستون فقرات حمل و نقل مواد باقی می مانند؟ نوار نقاله های غلتکی با کاهش کار د...
بیشتر بخوانیدفناوری کنترل سر و صدا و کاربرد نقاله کمربند شرکت ساخت ماشین آلات تدارکات Wuxi Huiqian ، Ltd.
در شرکت تولید ماشین آلات تدارکات Wuxi Huiqian ، Ltd ، ما در طراحی ، ساخت و فروش تجهیزات تدارکات از جمله غلتک ها ، نوار نقاله های غلتکی تخصص داریم نقاله کمربند ، قفس های ذخیره سازی ، چرخ دستی های تدارکاتی ، مینی نقاله ، فریم و قفسه. شرکت ما با تعهد به ترکیب فناوری پیشرفته ژاپنی تأسیس شده است ، به سرعت در صنعت ماشین آلات تدارکات به یک نام قابل اعتماد تبدیل شده است. دفتر مرکزی ما ، واقع در منطقه توسعه فناوری Hi-Tech National Wuxi ، از نظر استراتژیک با پیوندهای حمل و نقل عالی و امکانات کامل اطراف واقع شده است و دسترسی مناسب برای مشتریان ما را ارائه می دهد.
ما به سیستم مدیریت کیفیت علمی خود (QMS) ، یک نیروی کار ماهر و تجهیزات پیشرفته پردازش افتخار می کنیم. این ویژگی ها اطمینان حاصل می کند که محصولات ما بالاترین استانداردهای کیفیت را رعایت می کنند ، و ما خوشحالیم که به رسمیت شناختن و اعتماد مشتریان و شرکای خود در صنایع مختلف به دست آورده ایم. یکپارچگی ، قابلیت اطمینان و تعهد ما به نوآوری به ما این امکان را داده است تا به طور مداوم راه حل هایی را ارائه دهیم که باعث افزایش کارایی عملیاتی در سیستم های تدارکات و انتقال مواد می شود.
یکی از چالش های بسیاری از مشاغل که به آن متکی هستند نوار نقاله های کمربند مسطح در حال مدیریت سر و صدای ایجاد شده در طول کار است. در نتیجه ، فناوری کنترل نویز به طور فزاینده ای به جنبه اساسی طراحی نقاله تبدیل می شود. در این مقاله ، ما اهمیت کنترل سر و صدا را در آن بررسی خواهیم کرد نوار نقاله های کمربند لاستیکی ، به ویژه در بخش نوار نقاله استاندارد ، و اینکه چگونه Wuxi Huiqian فن آوری های پیشرفته کنترل نویز را برای اطمینان از عملکرد بهینه و یک محیط کار راحت درج کرده است.
اهمیت کنترل سر و صدا در نوار نقاله های کمربند
نوار نقاله های کمربند به طور گسترده ای در صنایعی مانند تولید ، تدارکات و توزیع برای توانایی آنها در حمل و نقل مواد به طور کارآمد در مسافت های طولانی مورد استفاده قرار می گیرند. با این حال ، سر و صدای ایجاد شده توسط کمربندهای متحرک ، غلطک ها و سایر قطعات مکانیکی می تواند به یک مسئله مهم در محیط کار تبدیل شود. قرار گرفتن در معرض طولانی در سطح زیاد سر و صدا می تواند منجر به آسیب شنوایی و کاهش بهره وری در بین کارمندان شود ، در حالی که مقررات مربوط به سر و صدای محل کار را نیز نقض می کند. بنابراین ، اجرای اقدامات مؤثر کنترل نویز برای بهبود محیط کار و کارآیی کلی سیستم ضروری است.
منابع سر و صدا در نقاله های کمربند رزین
چندین منبع سر و صدا در نوار نقاله های کمربند وجود دارد ، از جمله:
اصطکاک: تماس بین کمربند و غلطک یا سایر قطعات متحرک اصطکاک ایجاد می کند که به سر و صدا کمک می کند.
تنش کمربند: تنش نادرست کمربند نقاله می تواند باعث لرزش یا مالش آن در برابر سایر اجزای شود و در نتیجه صدای اضافی ایجاد شود.
جریان مواد: نوع و ماهیت مواد منتقل شده می تواند بر سر و صدا تأثیر بگذارد. به عنوان مثال ، مواد تیز یا خشن ممکن است در هنگام تماس با نوار نقاله باعث ایجاد سر و صدای بیشتری شود.
سیستم درایو: موتورها و درایوهای مورد استفاده برای تأمین انرژی نقاله ممکن است نویز مکانیکی ایجاد کنند ، به خصوص اگر به درستی حفظ نشوند یا تراز شوند.
در Wuxi Huiqian ، ما طیف وسیعی از فن آوری های کنترل نویز را توسعه داده ایم و آنها را در نقاله های کمربند خود به کار می بریم تا این مسائل را به حداقل برساند و هم بهره وری عملیاتی و هم راحتی کاربر را بهبود بخشد.
فن آوری های کنترل سر و صدا در Wuxi Huiqian
برای پرداختن به مشکلات سر و صدای مرتبط با نوار نقاله های کمربند ، ما چندین فناوری پیشرفته کنترل نویز را در سیستم های خود یکپارچه کرده ایم:
انتخاب مواد کمربند پیشرفته: انتخاب مواد برای کمربند نقاله در کنترل نویز بسیار مهم است. ما از مواد با کیفیت بالا و کم نوری استفاده می کنیم که باعث کاهش اصطکاک و انتقال صدا می شود و از عملکرد ساکت تر اطمینان حاصل می شود.
غلطک های جذب کننده سر و صدا: غلطک ها یکی از اصلی ترین مشارکت کنندگان در سر و صدا هستند نقاله های کمربند پلی اورتان بشر ما از غلتک های مخصوص طراحی شده که شامل مواد داگمینگ نویز هستند ، استفاده می کنیم و لرزش ها و سر و صدای ایجاد شده در طول کار را کاهش می دهند.
مکانیسم تنش بهینه شده: ما بر اطمینان از حفظ تنش کمربند در سطح بهینه ، جلوگیری می کنیم و از ارتعاشات غیر ضروری و اصطکاک جلوگیری می کنیم. سیستم های تنش ما به منظور کاهش سر و صدای ناشی از تنش نادرست کمربند طراحی شده اند.
در شرکت تولید ماشین آلات تدارکات Wuxi Huiqian ، Ltd ، ما در طراحی ، ساخت و فروش تجهیزات لجستیکی از جمله غلتک ، نوار نقاله غلتکی ، نوار نقاله های کمربند ، قفس های ذخیره سازی ، واگن های تدارکاتی ، مینی نقاله ، قاب و قفسه تخصص داریم. شرکت ما با تعهد به ترکیب فناوری پیشرفته ژاپنی تأسیس شده است ، به سرعت در صنعت ماشین آلات تدارکات به یک نام قابل اعتماد تبدیل شده است. دفتر مرکزی ما ، واقع در منطقه توسعه فناوری Hi-Tech National Wuxi ، از نظر استراتژیک با پیوندهای حمل و نقل عالی و امکانات کامل اطراف واقع شده است و دسترسی مناسب برای مشتریان ما را ارائه می دهد.
ما به سیستم مدیریت کیفیت علمی خود (QMS) ، یک نیروی کار ماهر و تجهیزات پیشرفته پردازش افتخار می کنیم. این ویژگی ها اطمینان حاصل می کند که محصولات ما بالاترین استانداردهای کیفیت را رعایت می کنند ، و ما خوشحالیم که به رسمیت شناختن و اعتماد مشتریان و شرکای خود در صنایع مختلف به دست آورده ایم. یکپارچگی ، قابلیت اطمینان و تعهد ما به نوآوری به ما این امکان را داده است تا به طور مداوم راه حل هایی را ارائه دهیم که باعث افزایش کارایی عملیاتی در سیستم های تدارکات و انتقال مواد می شود.
یکی از چالش های بسیاری از مشاغل که به نوار نقاله های کمربند متکی هستند ، مدیریت سر و صدای ایجاد شده در طول کار است. در نتیجه ، فناوری کنترل نویز به طور فزاینده ای به جنبه اساسی طراحی نقاله تبدیل می شود. در این مقاله ، ما اهمیت کنترل سر و صدا را در نوار نقاله های کمربند ، به ویژه در بخش استاندارد نوار نقاله ، و اینکه چگونه Wuxi Huiqian از فناوری های پیشرفته کنترل نویز برای اطمینان از عملکرد بهینه و یک محیط کار راحت استفاده خواهیم کرد ، بررسی خواهیم کرد.
اهمیت کنترل سر و صدا در نوار نقاله های کمربند
نوار نقاله های کمربند به طور گسترده ای در صنایعی مانند تولید ، تدارکات و توزیع برای توانایی آنها در حمل و نقل مواد به طور کارآمد در مسافت های طولانی مورد استفاده قرار می گیرند. با این حال ، سر و صدای ایجاد شده توسط کمربندهای متحرک ، غلطک ها و سایر قطعات مکانیکی می تواند به یک مسئله مهم در محیط کار تبدیل شود. قرار گرفتن در معرض طولانی در سطح زیاد سر و صدا می تواند منجر به آسیب شنوایی و کاهش بهره وری در بین کارمندان شود ، در حالی که مقررات مربوط به سر و صدای محل کار را نیز نقض می کند. بنابراین ، اجرای اقدامات مؤثر کنترل نویز برای بهبود محیط کار و کارآیی کلی سیستم ضروری است.
منابع سر و صدا در نوار نقاله های کمربند
چندین منبع سر و صدا در نوار نقاله های کمربند وجود دارد ، از جمله:
اصطکاک: تماس بین کمربند و غلطک یا سایر قطعات متحرک اصطکاک ایجاد می کند که به سر و صدا کمک می کند.
تنش کمربند: تنش نادرست کمربند نقاله می تواند باعث لرزش یا مالش آن در برابر سایر اجزای شود و در نتیجه صدای اضافی ایجاد شود.
جریان مواد: نوع و ماهیت مواد منتقل شده می تواند بر سر و صدا تأثیر بگذارد. به عنوان مثال ، مواد تیز یا خشن ممکن است در هنگام تماس با نوار نقاله باعث ایجاد سر و صدای بیشتری شود.
سیستم درایو: موتورها و درایوهای مورد استفاده برای تأمین انرژی نقاله ممکن است نویز مکانیکی ایجاد کنند ، به خصوص اگر به درستی حفظ نشوند یا تراز شوند.
در Wuxi Huiqian ، ما طیف وسیعی از فن آوری های کنترل نویز را توسعه داده ایم و آنها را در نقاله های کمربند خود به کار می بریم تا این مسائل را به حداقل برساند و هم بهره وری عملیاتی و هم راحتی کاربر را بهبود بخشد.
فن آوری های کنترل سر و صدا در Wuxi Huiqian
برای پرداختن به مشکلات سر و صدای مرتبط با نوار نقاله های کمربند ، ما چندین فناوری پیشرفته کنترل نویز را در سیستم های خود یکپارچه کرده ایم:
انتخاب مواد کمربند پیشرفته: انتخاب مواد برای کمربند نقاله در کنترل نویز بسیار مهم است. ما از مواد با کیفیت بالا و کم نوری استفاده می کنیم که باعث کاهش اصطکاک و انتقال صدا می شود و از عملکرد ساکت تر اطمینان حاصل می شود.
غلطک های جذب کننده سر و صدا: غلطک ها یکی از اصلی ترین مشارکت کنندگان در نویز در نوار نقاله های کمربند هستند. ما از غلتک های مخصوص طراحی شده که شامل مواد داگمینگ نویز هستند ، استفاده می کنیم و لرزش ها و سر و صدای ایجاد شده در طول کار را کاهش می دهند.
مکانیسم تنش بهینه شده: ما بر اطمینان از حفظ تنش کمربند در سطح بهینه ، جلوگیری می کنیم و از ارتعاشات غیر ضروری و اصطکاک جلوگیری می کنیم. سیستم های تنش ما برای کاهش سر و صدای ناشی از تنش کمربند نادرست طراحی شده اند .
آوردن کاردستی به آینده.
شماره 60 ، جاده Zhenhu North ، شهر هودای ، منطقه Binhu , Wuxi 214100 ، چین



